Remote Support

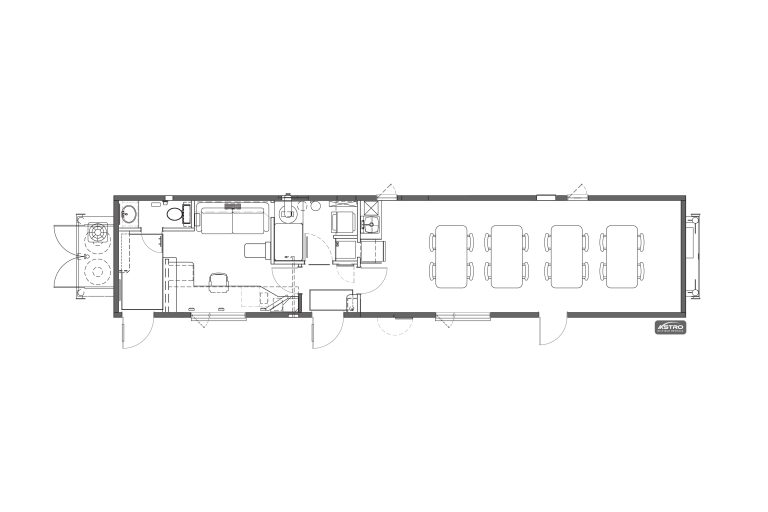
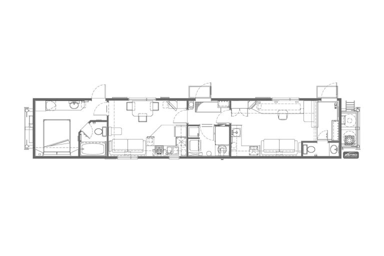
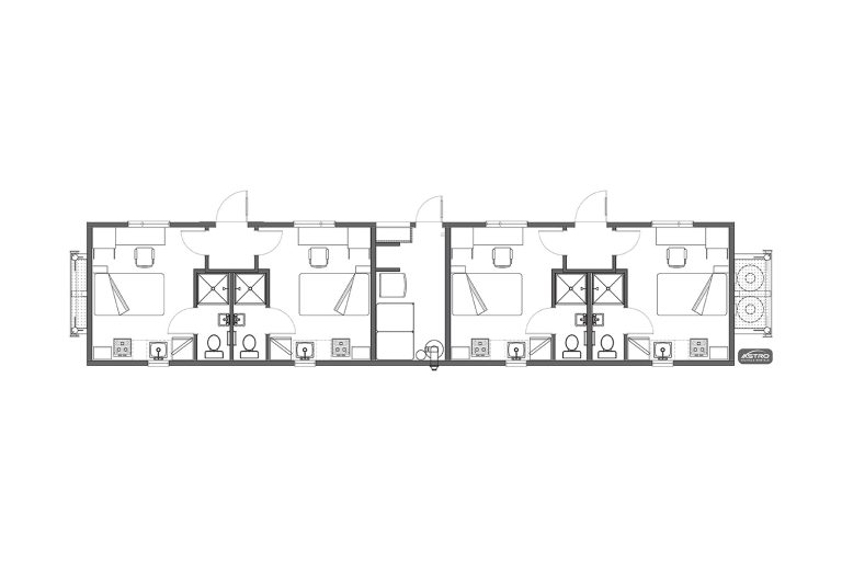
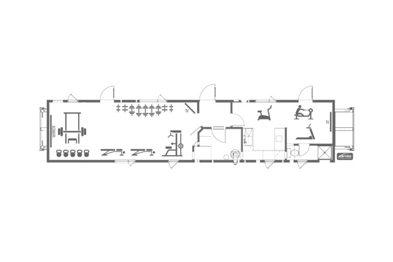
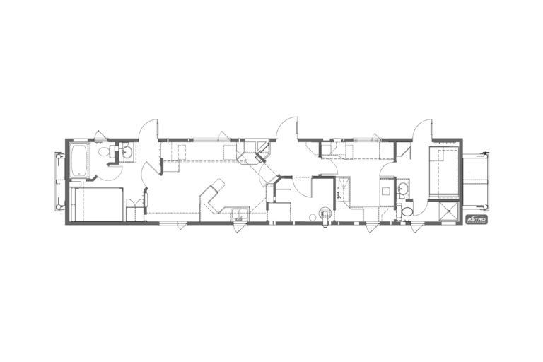
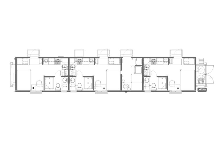
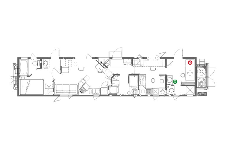
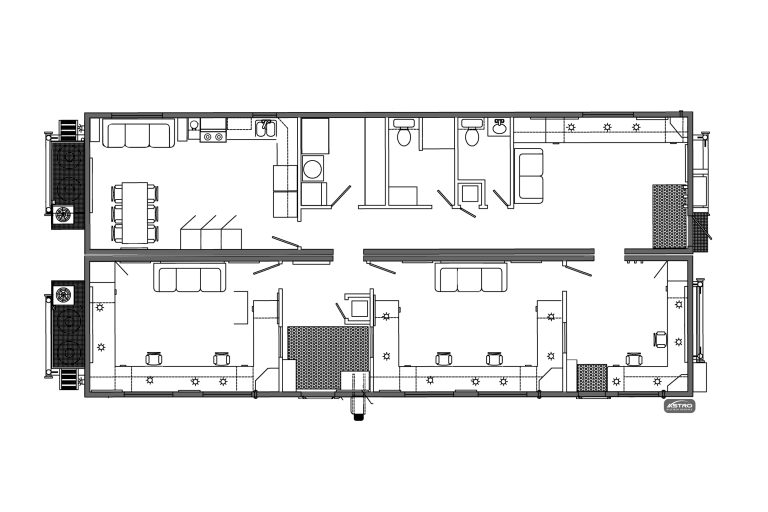
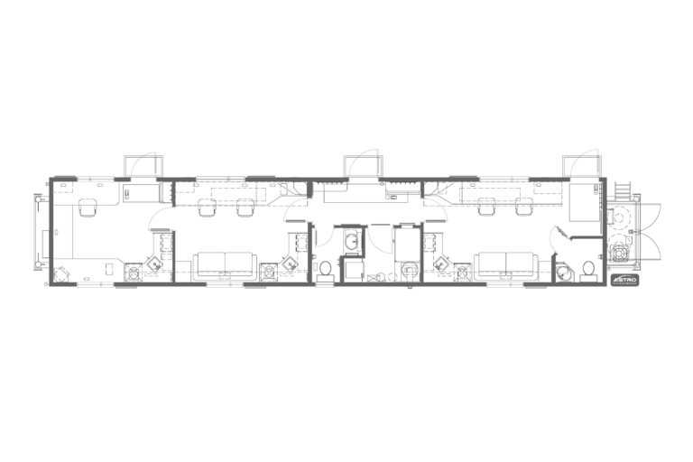
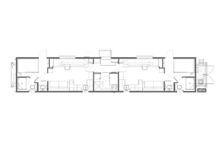
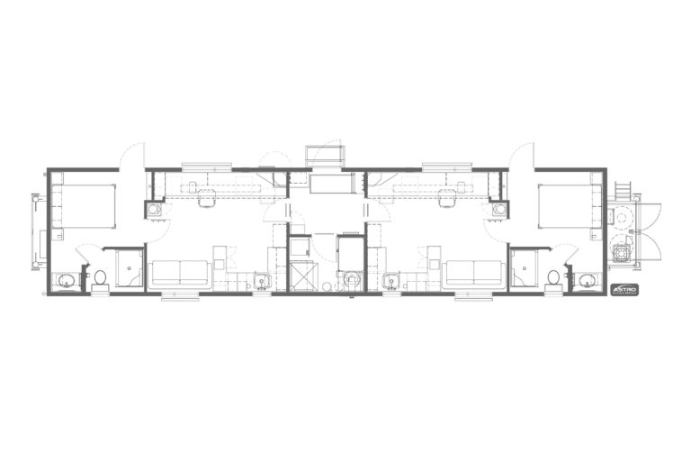
Wellsite Trailers

Wellsite trailers or shacks are an important part of every remote worksite. Ensuring your employees have a comfortable place to recharge and an efficient place to work is a top priority. At Astro, we provide a rental that is worry-free with a variety of wellsite trailer layouts and features.

The Basics:

  • Cleaning – We take great care in ensuring that our wellsite trailers are cleaned top to bottom in between rentals. Our cleaning team uses high-quality disinfectant products and won’t stop until they have got into all the nooks and crannies.
  • Inspections – All wellsite trailers go through a detailed multi-point inspection before being delivered to your site. This includes checking all appliances, greasing doors and hinges and ensuring the propane tank is clean…to name only a few.
  • Maintenance - Your rental will be worry-free as we take care of all on-going maintenance needs. Whether it’s fixing a leak, replacing a washer or trading out a bed, an Astro technician will be dispatched immediately to fix any issues and will ensure you are happy before they leave the site.

Astro’s Remote Support Advantage

  • Available 24/7
  • Real technicians, real time
  • Remotely accessible equipment
  • Rapid troubleshooting

Available 24/7
Real technicians, real time
Remotely accessible equipment
Rapid troubleshooting

Click HERE for quick support options

Astro Oilfield Rentals Ltd.
Far Beyond Expectation
Toll-Free: 
000-000-000
Remote Support
Service Centres
Fort St. John
Grande Prairie
Edmonton
Calgary
Vermillion
Kindersley
Alaska, USA
© 2026 Astro Oilfield Rentals USA All rights reserved.