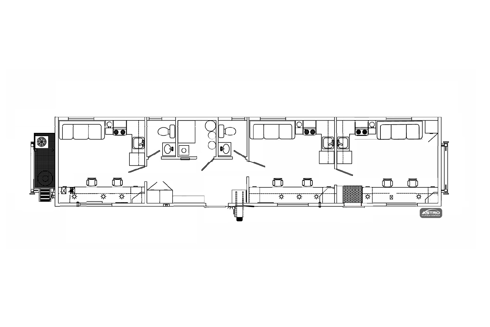
This wellsite trailer has three offices ranging in size. Please see features below for the specifics of each office area.







Note: Floor plans and features vary per unit, so please contact Astro directly
for availability.
* indicates required field