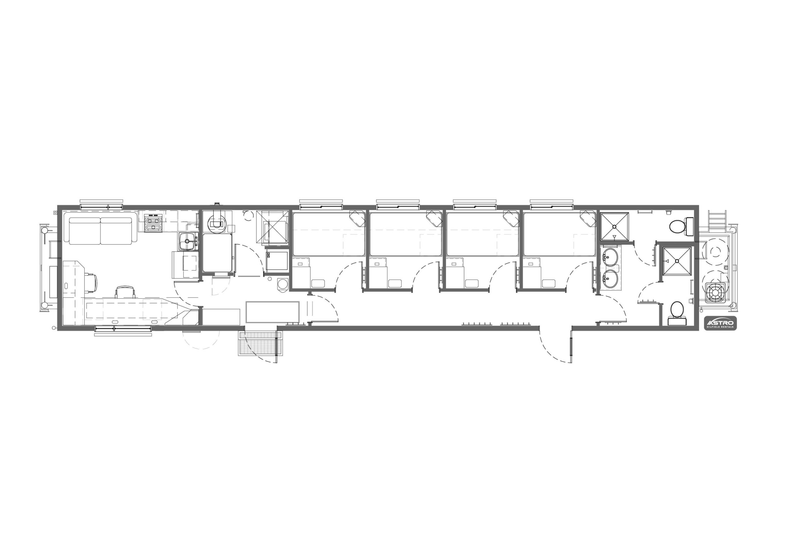
This wellsite trailer is truly multi-functional with four private bedrooms and a shared workspace, kitchen and bathroom area.
Dimensions: 12’ x 60’

Note: Floor plans and features vary per unit, so please contact Astro directly
for availability.
* indicates required field