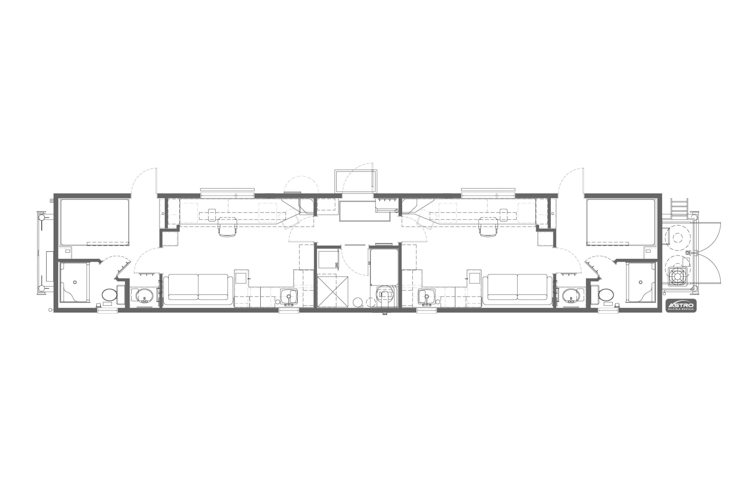
These wellsite trailers have identical units at the end of each shack. Each includes a spacious work area and desk with drawers, great sized kitchen (full-sized refrigerator with freezer), leather couch, bedroom (double XL bed) and bathroom with shower. These units have central air and additional baseboard heaters under the desk area and in the bedroom (specific units only).
Also available in a 14’ wide.











Note: Floor plans and features vary per unit, so please contact Astro directly
for availability.
* indicates required field