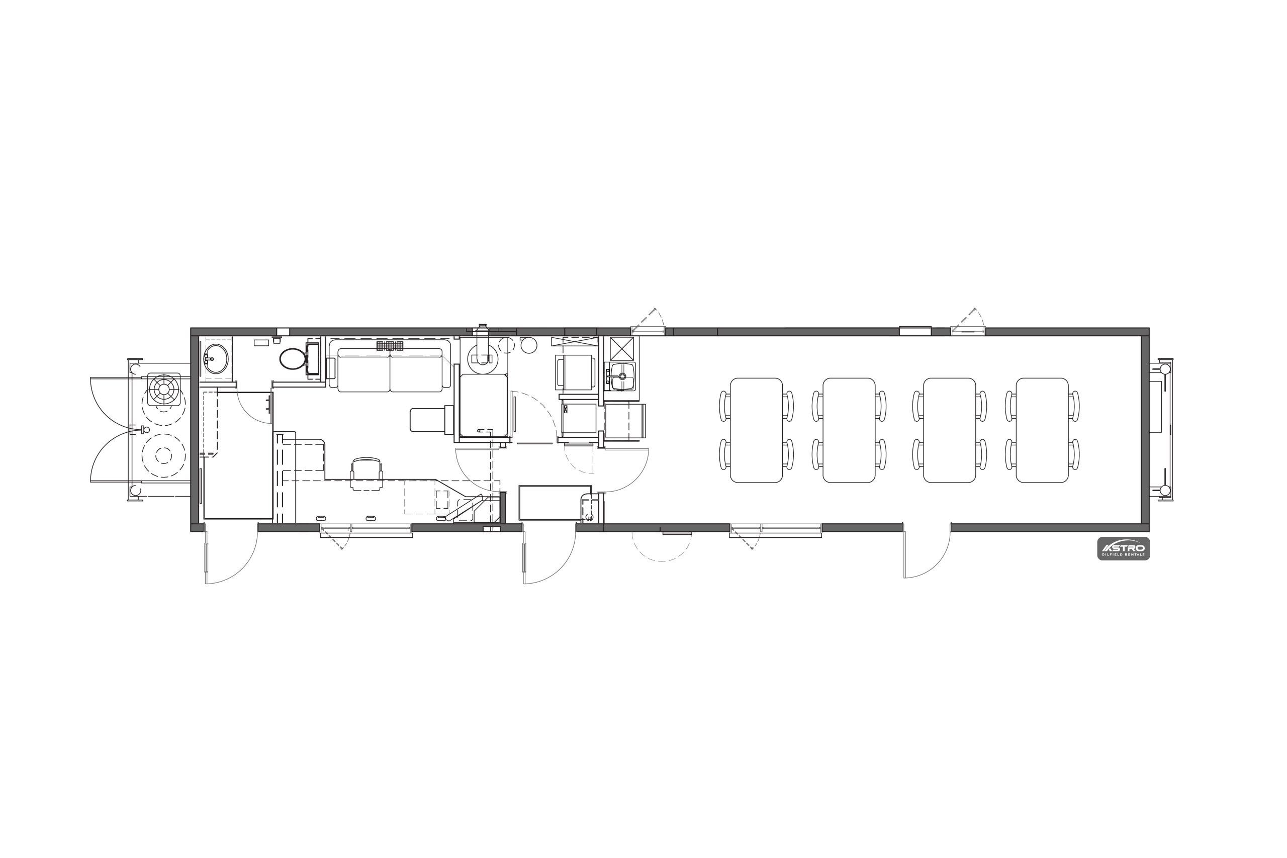
This wellsite trailer has been customized and contains two separate work areas. On one side there is a large open room that can be used as a workspace or meeting area (4 tables and 20 chairs included). The room can comfortably fit four 6’ tables with seating or 20+ people standing and has been used for morning or safety meetings or for multiple workspaces. This side has a small kitchen area including a refrigerator, sink and microwave. On the other side there is an office with a large desk/work area, couch and bathroom.





Note: Floor plans and features vary per unit, so please contact Astro directly
for availability.
* indicates required field