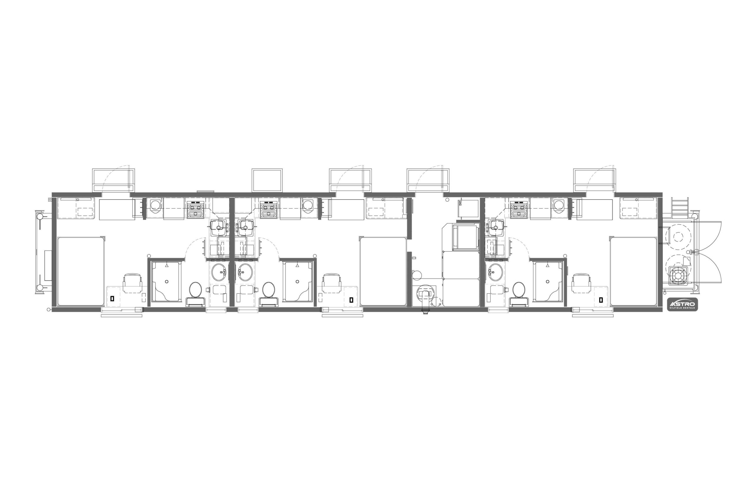
These wellsite trailers include 3-bedroom units and provide employees privacy and the comforts of home on any remote worksite or location. All three units have private access and each contains the convenience of a kitchen including refrigerator with freezer, stove with oven, microwave, coffee maker and toaster. Also included are a bed, work station, clothes cabinet, bathroom and television.
Dimensions: 12’ x 60’




Note: Floor plans and features vary per unit, so please contact Astro directly
for availability.
* indicates required field